Britador de Mandíbula
Os britadores de mandíbulas são um tipo de equipamento muito usado para trituração de minerais e rochas com uma resistência à compressão que não é superior a 320MPa, como calcário, arenito, xisto, gesso, carvão e argila. O britador de mandíbula é amplamente usado em diversas indústrias, incluindo mineração, fundição, material de construção, rodovia, ferrovia, engenharia hidráulica, engenharia química e outras.
| Modelo | Tamanho de entrada da alimentação (mm) | Tamanho máximo de alimentação (mm) | Faixa de ajuste da abertura de descarga (mm) | Capacidade de processamento (m3/h) | Potência do motor (kW) | Peso (excluindo o motor) |
| | 500x750 | 425 | 50~100 | 28.5~62.5 | 55 | 10.3t |
| | 600×900 | 500 | 65~160 | 30~75 | 55 | 15.5t |
| | 800×1060 | 640 | 100~200 | 85~143 | 110 | 30t |
| | 900×1200 | 750 | 95~165 | 87~164 | 110 | 50t |
| | 1000×1200 | 850 | 195~265 | 197~214 | 110 | 50.6t |
| | 1200×1500 | 1000 | 150~300 | 250~500 | 220 | 82.3t |
| | 1500×1800 | 1200 | 220~350 | 281~625 | 280 | 122t |
| | 150×750 | 120 | 18~48 | 5~16 | 15 | 3.5t |
| | 250×1000 | 210 | 25~60 | 10~32 | 30 | 6.5t |
| PEX~250×1200 | 250×1200 | 210 | 25~60 | 13~38 | 37 | 7.7t |
| | 300×1300 | 250 | 20~90 | 10~65 | 75 | 11.6t |
Notas: A capacidade real do britador pode ser afetada por diversos fatores, como o material de alimentação (tipo de material, tamanho do material, capacidade de britagem, teor de água e outros), operação (eficiência alimentar, distribuição de alimento), descarga e demais fatores. A lista de parâmetros é apenas uma referência ao uso real e uma previsão da capacidade de produtividade.
A rotação do eixo excêntrico é acionada pelo motor através de uma correia em V, fazendo com que a mandihula Pitman se mova em linha com o movimento do eixo excêntrico, com isso ele esmaga o material na câmara de britagem, transportando-o para baixo para ser descarregado do equipamento.
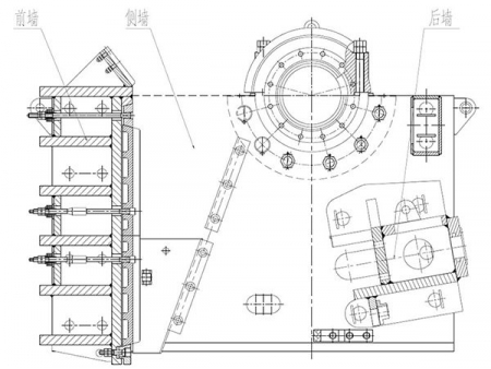
Componentes de exibição
- Macaco hidraúlico
- Abanadeira
- Regulagem das cunhas
- Mandibula Pitman
- Mandíbula móvel
- Cunha lateral superior
- Mandíbula fixa
- Moldura frontal
Ao usar este equipamento, a estrutura do britador de mandíbula sofrerá um impacto significativo, isso significa que ele precisa ter uma alta resistência e ótima rigidez. Devido a isso, o quadro frontal, o quadro traseiro e o quadro lateral possuem uma estrutura composta.
Mandibula Pitman
A mandibula Pitman do britador de mandíbula é soldado para que nãos seja muito pesado. Tem alta precisão de usinagem, sendo suficiente para funcionar com excelente segurança e confiança.
Placa de mandíbula
A placa da mandíbula é uma peça muito importante para o esmagamento das pedras e possui uma mandíbula fixa e uma mandíbula móvel. Lembre-se que esta é uma peça que se desgasta com facilidade, a placa da mandíbula é fabricada de aço de alto teor de manganês para certificar ótima resistência ao desgaste e maior vida de serviço. A placa da mandíbula também pode ser reforçada através de um processo de endurecimento a frio.
- A mandíbula fixa é colocada na estrutura frontal por parafusos de cunha para certificar a sua estabilidade.
- As proteções laterais são colocadas na estrutura lateral em ambos os lados do britador, com isso, consegue-se proteger o britador contra desgaste durante o transporte.
- Um lado da placa articulada é colocado na base de ajuste para que ela possa prender a mandíbula em movimento. A carga mecânica aumentará muito e a placa articulada poderá atuar como um dispositivo de segurança quando o material de alimentação não puder ser quebrado na câmera.
- Nós podemos ajustar a largura da abertura de descarga, basta apenas ajustar a espessura das cunhas de ajuste.
- A câmara de britagem tem profundidade grande o suficiente para pegar muitas matérias-primas, com isso consegue-se melhorar a capacidade de alimentação e a produção.
- A Sinomaly fabrica diversos tipos de britadores, mas a única diferença entre eles é apenas a capacidade de produção. Nós podemos personalizar o design e a fabricação dos britadores conforme as suas necessidades.

